Moderne 4 Zimmerwohnung mit 2 Balkonen in der Altstadt von Wedel!
Objektart
Wohnung
Ort
Wedel
Objekttyp
Dachgeschoss
Wohnfläche
ca. 120 m²
Anzahl Zimmer
4
Anzahl Schlafzimmer
3
Anzahl Badezimmer
1
Baujahr
1978
wesentlicher Energieträger
Gas
Verfügbar ab (Text)
01.01.2026
Kaltmiete
1.440,00 €
Energieausweis
Verbrauchsausweis
Objektbeschreibung
HINWEIS ZUR BEWERBUNG:Bitte haben Sie Verständnis, dass wir unvollständige oder „Blanko“-Anfragen nicht berücksichtigen können. Damit wir Ihre Anfrage schnell bearbeiten können, bitten wir Sie, die beigefügte Selbstauskunft vollständig auszufüllen und uns diese an info@immobilien-hs.de zuzusenden.
Objektanschrift: Am Marktplatz 9 in 22880 Wedel
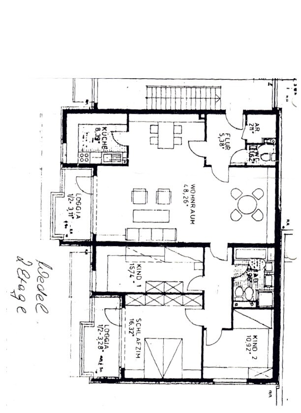
Diese großzügige 4 Zimmer Wohnungen mit einer Wohnfläche von ca. 120 qm befindet sich im 2. OG eines gepflegten Mehrfamilienhauses.
Das Gebäude verfügt über keinen Fahrstuhl, überzeugt jedoch durch eine durchdachte Raumaufteilung und die hellen, freundlichen Wohnräume.
Die Wohnung besticht durch ihren großzügigen Wohn- und Essbereich, der einen direkten Zugang zu dem ersten Balkon bietet, ideal für entspannte Stunden im Freien. Insgesamt stehen 3 Schlafzimmer zur Verfügung, von denen eines über einen weiteren Balkon verfügt. Der Eingangsbereich sowie ein Abstellraum direkt in der Wohnung bietet ausreichend Platz zum Verstauen.
Das modern geflieste Vollbad sowie das Gäste WC sorgen für zusätzlichen Komfort. Im Kellergeschoss steht ein eigener Kellerraum zur Verfügung. Darüber hinaus gibt es einen gemeinschaftlich genutzten Wasch-, und Trockenraum sowie einen Fahrradabstellraum. Ein Stellplatz kann für 50,00€ im Monat mit angemietet werden.
Die Wohnung wurde im Jahr 2018 vollständig saniert und präsentiert sich einen einem sehr gepflegten Zustand.
Location
Willkommen im Elbvorort WEDELDie Stadt Wedel hat derzeit ca. 33.000 Einwohner. Sie ist umringt von einem herrlichen Grüngürtel, der sich im Osten der Stadt dem Hamburger Stadtteil Rissen parkähnlich anschließt und im Norden bis zum Klövensteen einem großem Waldgebiet mit Wildgehege, geht.Im Westen befindet sich ein Geesthang, der zur HASELDORFER MARSCH hin abfällt, während im Süden die Elbe fließt und mit ihrer Deichlandschaft zu wunderschönen Spaziergängen und Fahrradtouren einlädt.
Das Umfeld Wedels ist, was die Infrastruktur betrifft, gut erschlossen und erfüllt damit höchste Ansprüche an Wohnen und Freizeit.
VERKEHRSLAGE
-Wedel liegt an der B 431 (Elmshorn - Hamburg)
-Autobahnanschlüsse: BAB 7 Hamburg Bahrenfeld oder Othmarschen ca. 14 km,
BAB 23 ca. 12 km,
-mehrere Buslinien innerorts Richtung Hamburg und Uetersen,
-S-Bahn nach Hamburg Hauptbahnhof ca. 40 Minuten,
-Schifffahrt: Fährverbindung nach Niedersachsen, Hamburg und Helgoland.
VERSORGUNGSLAGE
-sämtliche Schulen, diverse Kindergärten und Tagesstätten am Ort
-Geschäfte des täglichen Lebens sind fußläufig erreichbar
-Ärzte und Geschäfte des täglichen Bedarfs in unmittelbarer Nähe
FREIZEIT/ ERHOLUNG / SPORT
-Vielfältige Sportmöglichkeiten und Vereine, Erlebnisbad, Naherholungsgebiete wie Forst
Klövensteen und die Elbmarschen in unmittelbarer Nachbarschaft.
-Elbwanderwege mit Schiffsbegrüßungsanlage, Theater Wedel, Theaterschiff “Batavia”,
-Museum, Stadtbücherei, Volkshochschulen, etc.
Energieausweis
Other Information
Erfahrung und Qualität seit 1994Als erfahrenes und inhabergeführtes Familienunternehmen steht bei uns neben einer erfolgreichen Vermarktung Ihrer Immobilie, die Kundennähe, Zuverlässigkeit und das Ihnen entgegengebrachte Vertrauen an erster Stelle.
Durch unsere umfangreichen Kompetenzen im Bauwesen und den langjährigen Tätigkeiten im Bauträgergeschäft sowie den Verbindungen zu anerkannten Handwerksunternehmen, Architekten, Notaren und Banken, haben wir für Sie ein sehr gut funktionierendes und vertrauensvolles Netzwerk geschaffen.
Lassen auch Sie sich von unserer Kompetenz überzeugen!
Ansprechpartner
Frau Alina Schultz
Rissener Straße 24
22880 Wedel
Telefon: 04103-9026999
E-Mail: anfrage@immobilien-hs.eu
Objekt-Anfrage
Seiten: 1

















